Mieszkanie w odcieniach zieleni

Podział zabudowy na odzież
Dużo miejsca do przechowywania
Ukryte wejście do gabinetu

Wnętrze, które dobrze działa na co dzień

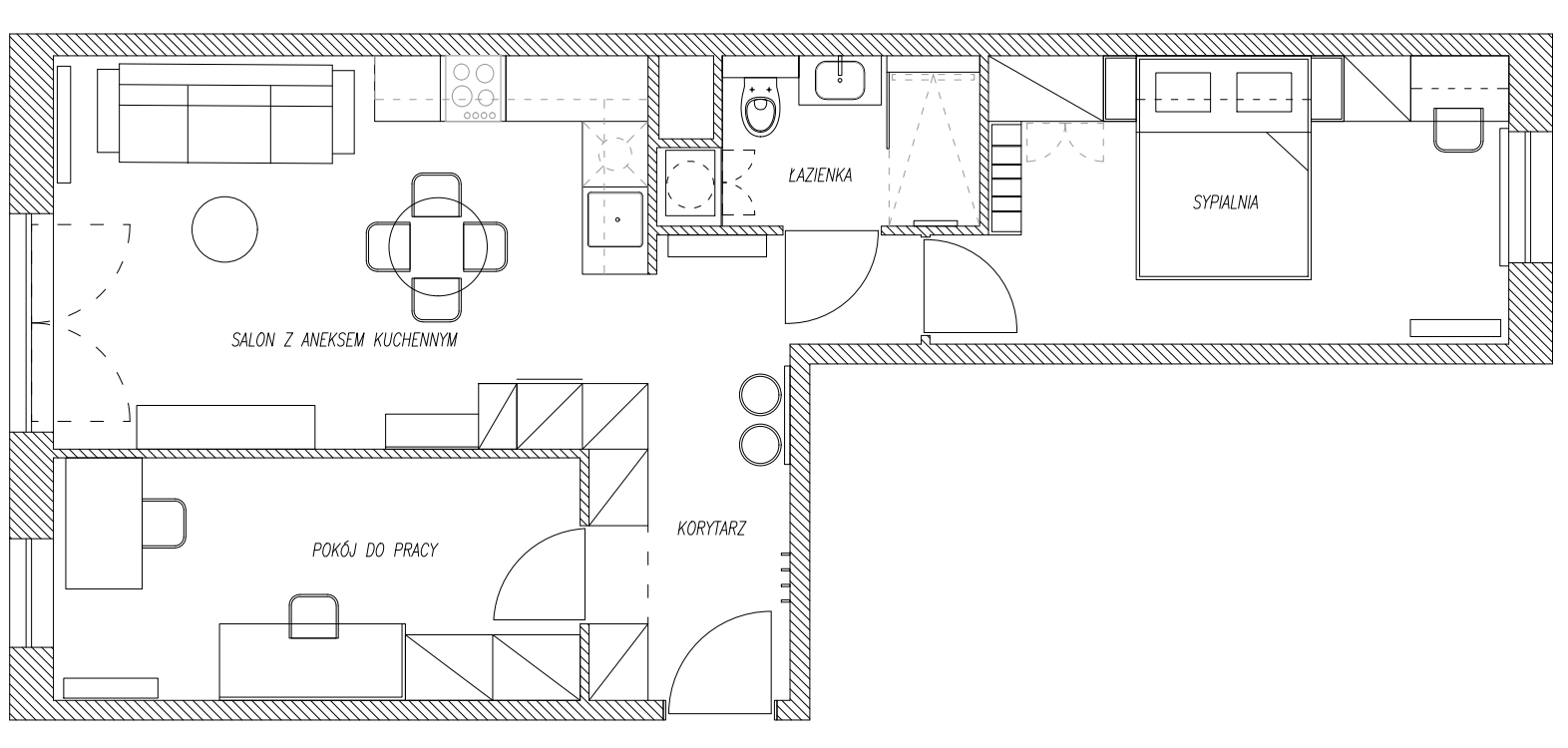
Mieszkanie Łukasza i Patrycji od początku miało dwa kluczowe założenia - maksymalna ilość miejsca do przechowywania oraz zieleń jako motyw przewodni, który spina całe wnętrze.

Przy niewielkim salonie z aneksem kuchennym wyzwaniem było takie zaplanowanie przestrzeni, aby była nie tylko estetyczna, ale przede wszystkim wygodna w codziennym użytkowaniu. Kluczowym krokiem okazało się delikatne przesunięcie ściany w stronę pokoju pracy - zmiana, która otworzyła nowe możliwości aranżacyjne.

Dzięki temu udało się zaprojektować rozbudowaną zabudowę w holu oraz sprytnie ukryć w kuchni lodówkę i wysokie cargo. Kuchnia zyskała lekkość, a ilość blatów roboczych została niemal podwojona, co znacząco poprawiło komfort użytkowania. Całość dopełniają odcienie zieleni, które wprowadzają spokój i spójność we wnętrzu.

Efekt? Przestrzeń, która nie tylko dobrze wygląda, ale przede wszystkim działa. A ilość miejsca do przechowywania okazała się na tyle duża, że - jak przyznali właściciele - chwilami brakuje im rzeczy, żeby je wszystkie wypełnić.

55

m2

3

pokoje

2

mieszkańców

Bezpłatna wycena

Chcesz dokonać wstępnej wyceny?
Napisz w treści wiadomości czego dokładnie potrzebujesz.
Niezobowiązującą wycenę otrzymasz w ciągu 24 godzin.

Chcesz osobiście porozmawiać o projekcie?
Zapraszam do kontaktu telefonicznego.

Projektuję wnętrza dla klientów z całej Polski
– niezależnie od lokalizacji.

 

STUDIO KAKTUS

OBSERWUJ STUDIO KAKTUS