Mieszkanie niskobudżetowe na flipa

Dużo przechowywania
Biurko do pracy zdalnej
Regał na boku lodówki

Szybki remont i jeszcze szybszy zysk

Mieszkanie w krakowskiej kamienicy zostało kupione jako okazja inwestycyjna z jasnym celem - szybki, budżetowy remont i maksymalizacja wartości przy ponownej sprzedaży.

Ze względu na lokalizację w pobliżu uczelni oraz usytuowanie na 4 piętrze bez windy, naturalną grupą docelową byli młodzi ludzie i studenci. Cała koncepcja została podporządkowana ich potrzebom - funkcjonalności, prostocie i optymalnemu wykorzystaniu przestrzeni.

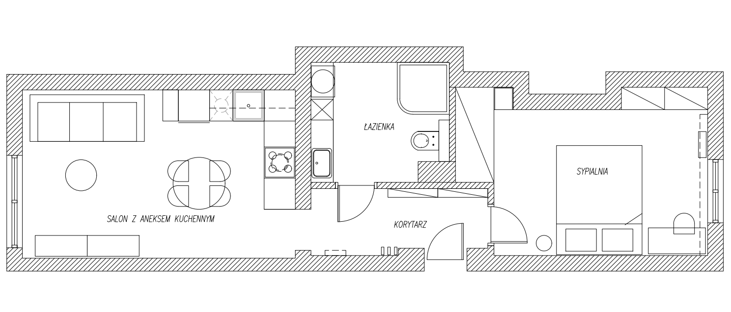
Kluczową zmianą funkcjonalną było przeniesienie kuchni do salonu. Dzięki temu udało się wydzielić osobną sypialnię, co znacząco zwiększyło atrakcyjność mieszkania na rynku i pozwoliło stworzyć dodatkową przestrzeń do przechowywania. Aneks kuchenny, mimo niewielkich rozmiarów, został zaprojektowany w sposób przemyślany i wygodny w codziennym użytkowaniu, dobrze wpisując się w charakter wnętrza.

Największą metamorfozę przeszła łazienka - to właśnie tutaj najbardziej widoczny był „duch czasu”. Kompleksowy remont tej strefy pozwolił podnieść standard mieszkania i jego odbiór przez potencjalnych kupujących.

Efekt? Nieruchomość została sprzedana w ciągu zaledwie 3 tygodni od wystawienia oferty, osiągając założony procent zysku. To przykład, jak odpowiednie decyzje projektowe i dobrze określona grupa docelowa przekładają się bezpośrednio na tempo sprzedaży i realny zwrot z inwestycji.

45

m2

2

pokoje

2

mieszkańców

Bezpłatna wycena

Chcesz dokonać wstępnej wyceny?
Napisz w treści wiadomości czego dokładnie potrzebujesz.
Niezobowiązującą wycenę otrzymasz w ciągu 24 godzin.

Chcesz osobiście porozmawiać o projekcie?
Zapraszam do kontaktu telefonicznego.

Projektuję wnętrza dla klientów z całej Polski
– niezależnie od lokalizacji.

 

STUDIO KAKTUS

OBSERWUJ STUDIO KAKTUS